This house near Barcelona ranks among the most radical and subversive works of architecture of 2014, and yet it’s not by one of the usual suspects, but by an architect you’ve probably never heard of. In case you’re wondering, his name is Marcel Fontanillas.
So just what is it, exactly, that makes this house so radical? It certainly doesn’t ‘look’ extreme. Where is the gravity-defying space-frame, the infinite grid, the inflatable structure, the plug-in mega-infrastructure or the obliquely inclined surface? Where are the crashing-into-each-other beams or the chain-link fence façades?
You know times have changed when architects who once styled themselves as ‘radical’ end up building headquarters for the European Central Bank in Frankfurt, art museums for luxury multinationals, or a headquarters for China’s state-controlled television broadcaster. Sell-outs? No, they were simply never radical in the first place. Architecturally novel, yes, and very clever at marketing, but not radical in the commonly understood sense of the word: politically subversive. Indeed, true political radicals never label themselves as such. They see their own position as ‘central’ — it’s the opposition who are ‘radical’ or ‘extreme’.
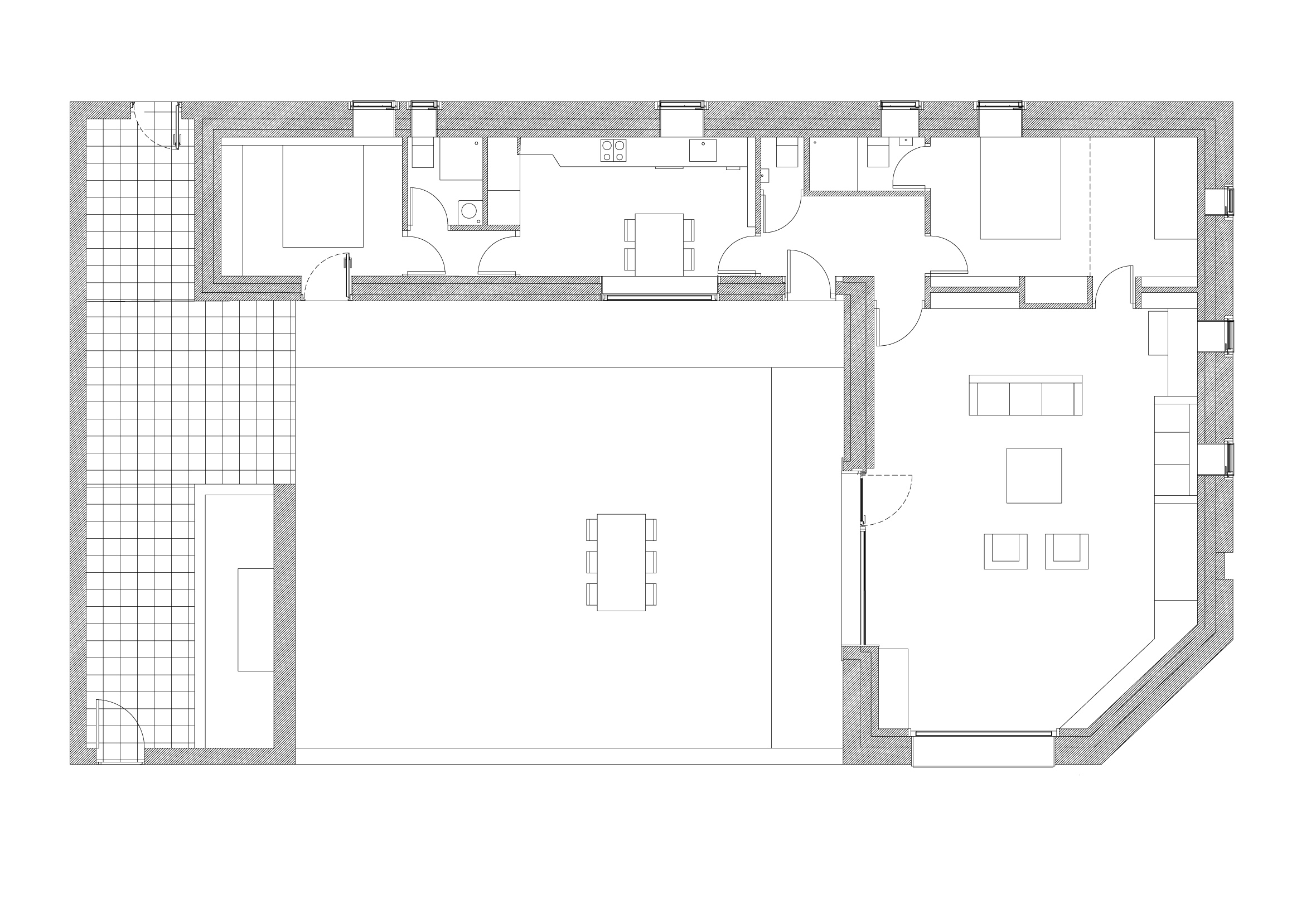
Why is this house radical, then? Because it is an off-grid PassivHaus that requires no electricity, natural gas, or heating oil, thereby squarely opposing the interests of state-sanctioned energy oligopolies. In short, this harmless-looking, cosy little rural house subverts our economic system. Truly radical. However if you ask Marcel, he’ll deny there’s anything radical about this house. He thinks that’s merely what all architecture should strive to do: save energy, reduce our carbon footprint, and fuck the system.


very interesting…. more info about the architect or house?
Hi Fernando. You might find some more information on the website: http://www.thefrontoffice.eu