Does the sight of absurd architectural projects containing shipping containers make you cringe? Do you break into a cold sweat merely at the thought of people living in steel boxes that are as prone to overheating as a car parked under a high-noon July sun? Have you seen one too many a design project that stacks containers as though they were Jenga blocks? Have you had it with rusty containers from which string lights emanate and overpriced beer is served?

You are not alone. Many people, including many architects (yes, architects are people too), abhor shipping containers, instantly dismissing any project that contains them for seemingly no reason other than that: containing them. This is entirely understandable, of course, as containers were never intended for human occupation. Indeed, the shipping container sums up everything that is wrong with contemporary society, as this internationally standardized logistics device is what makes possible a global economy based on the gluttonous over-consumption of disposable products designed in California, made in China, shipped through Singapore, sold around the world in minimalist flagship stores, and dumped in Ghana after only a year or two. Architectural shipping container projects have come to be labelled everything from “inhumane” to “macho tech bro architecture” by experts in these matters. You know these kinds of projects are definitely not having their best moment when a Guardian editor headlines an early story about the very subject of this review “Sardine tins for the poor“.

Well, for what it’s worth, here goes my take on these sardine tins: APROP (Allotjaments de proximitat, or “accommodation of proximity”) is a prefab housing project recently completed in the middle of Barcelona’s historic Gothic Quarter incorporating 16 used shipping containers. But before you start rolling your eyeballs into the upper reaches of your eye sockets, please stay calm and read on. This is not your typical, attention-grabbing container architecture project, but an experimental prototype that could potentially have a positive impact on housing affordability. It therefore deserves to be studied carefully.
Firstly, the 16 containers are nowhere to be seen in this building, as they are buried deep within layers of thermal insulation and finishing materials both inside and out. There’s even a double-skin façade. So what, you might be asking, is the point of using containers if you can’t see them? Good question. We’ll get to aesthetic issues later, after more pressing performance-related questions of affordability, expediency, and sustainability.

Barcelona has a serious problem: housing has become unaffordable even to those with jobs. Seems urban life is increasingly only for expats or those who come from what are euphemistically referred to in Catalonia as famílies de bé or “good families” (i.e. ones with spare cash to stash in Andorran banks). Ever since it became absurdly more profitable for landlords to rent flats to tourists rather than locals via platforms such as AirBnB, the price of rental housing has gone through the roof. The result? Increasing numbers of evicted persons for whom some sort of emergency accommodation needs to be provided as quickly and as economically as possible by a city council left cash-strapped by the last economic crisis.

The architects of this building, Straddle 3 (working together with Jon Begiristain and Yaiza Terré), were commissioned by Barcelona City Council to design an APROP prototype after collaborating on an affordable housing research project, ATRI, with other architects, academics, and housing rights activists. Straddle 3 is a collective who have been tinkering for many years with low-cost “tactical” architecture, gaining experience in building projects characterized by the re-use of industrial and commercial by-products. Shipping containers withdrawn from circulation for no longer being seaworthy are dirt cheap, as they are considered scrap metal apt for little more than melting down and recycling. It’s always much better, of course, to re-use something before recycling it. But are they appropriate to live or work in? Not ideally, perhaps, but then we inhabit a world that is increasingly far from ideal. It has to be remembered that in this case, the dwellings are actually temporary shelters: the intended use here is to provide a home for no more than five years; hopefully long enough to get one’s life back on track.

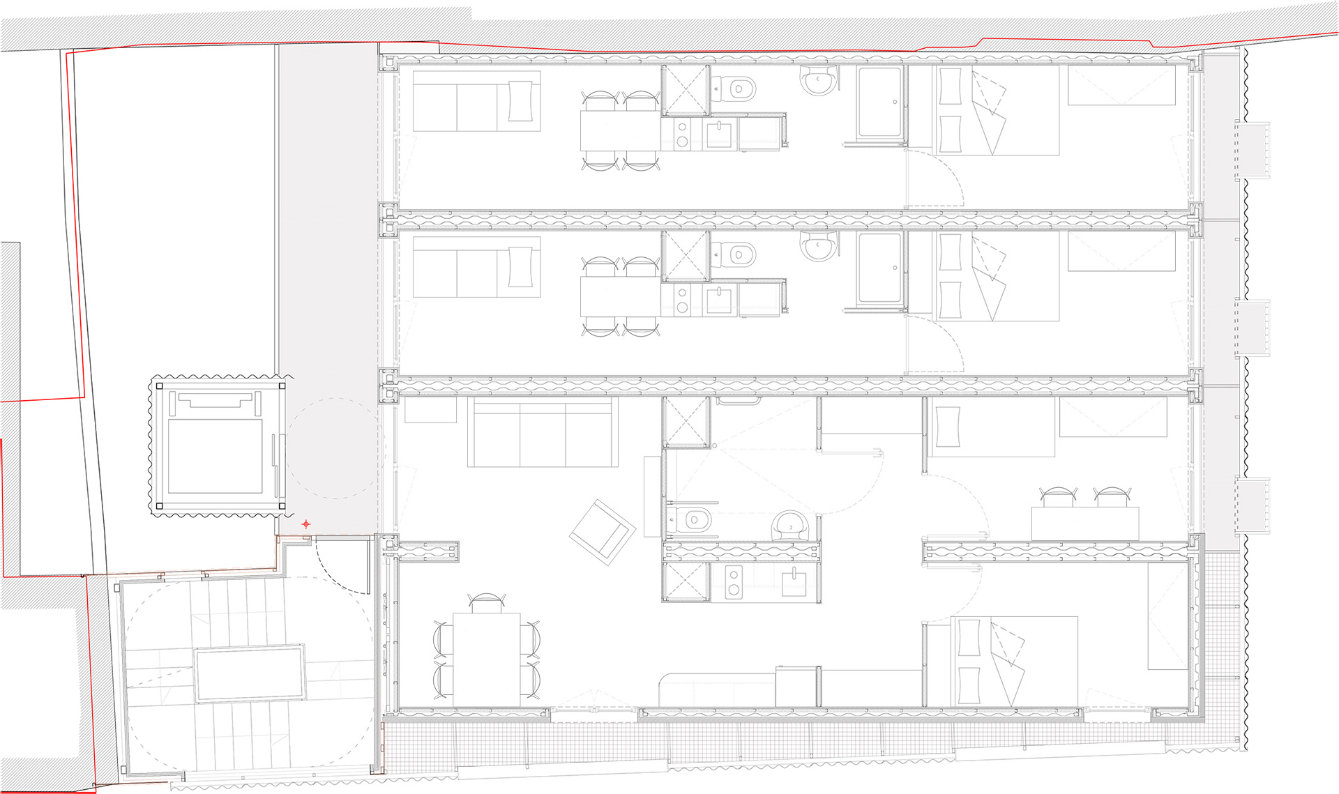
One of the most money-saving aspects of this building is the fact that containers are not only its prefabricated dwelling units, but also its structure. Containers can withstand stacking up to 9 units high, and unlike many other architectural projects in which they are supported by some sort of structural frame, this one takes full advantage of the significant built-in structural capacity of these modules (don’t worry: the retired containers selected to be used here were inspected for structural soundness). Here, a cluster of containers four wide by four tall is elevated by steel pilotis to create a more open and transparent ground floor communal area.

Each floor of this residential building contains three dwelling units. Corner units are two-bedroom apartments made of two 40 foot shipping containers, while the rest are single-module one-bedroom units. The site of the project is an empty urban corner lot located within earshot of Las Ramblas where a decrepit building was torn down about a decade ago. APROP has a double-skin façade because the city of Barcelona’s urban bylaws in this dense historical district require building volumes to extend exactly to all their property lines, leaving a margin of space between the cluster of containers and the somewhat irregularly shaped plot.

The building’s ground floor contains an entrance lobby for the dwellings above as well as a generously glazed corner storefront space for commercial or institutional use. On the upper floors, a stair and elevator tower open onto an outdoor gallery access deck overlooking a lightwell that is shared with an adjacent building. This covered outdoor deck, wider than required by the Spanish building code, allows a sliver of “in-between” space to be appropriated by dwellers for putting plants or a chair. Indeed, every apartment is entered through glass doors, enabling its least private space –the living room– to fuse with the gallery while receiving natural light and permitting summer cross-ventilation. A communal roof garden caps the building.

The dwelling units make the best possible use of the shipping containers’ narrow dimensions. The two-bedroom corner dwellings made out of two containers do not feel the least bit cramped: considering that this is affordable housing, they are very generously laid out. It is the single-container dwelling type that pushes the limits of livability with its interior width of only 2.2 meters. This is certainly very narrow for a dwelling, not only functionally but also psychologically, and is only permitted by code because of the temporary nature of the occupation. But then again, tiny bedrooms are actually quite typical in many traditional Spanish homes, so this is nothing out of the ordinary.

What makes this container housing successful is precisely the fact that containers are nowhere to be seen. Architectural moralists who believe that the structure of a building should always be visible will undoubtedly be disappointed by this project, but if the containers had been left visible on the exterior, not only would they overheat in Barcelona’s steamy summers, but its inhabitants would be stigmatized as living in sardine cans. Normalcy is precisely the point: does architecture always need to be “disruptive”, attention-grabbing and obnoxious? The important thing is not to show off the containers, but to re-use them and make them part of a circular economy that places the question of eco-efficiency above that of style; or ethics over aesthetics. APROP cost little to build, was completed in only months, and in the process emitted much less CO2 than an equivalent concrete, steel or masonry new-build. APROP even looks subtly intriguing to boot. In the event that it needs to be removed, it can be dismantled the same way that it was assembled, and rebuilt again elsewhere. Circular architecture has never been so square and straightforward.




Very nice article! I ll send it off to a friend who as well was planning, or about to do, or had built already a container house: but not above another but two cut in the middle put together like a cross shape with acommon space in the middle. If you go there again, can I come to have a look?
bisou,g
>