[Originally published in Baumeister 3/2020]
The number of rooms contained in a building is not the way most young architects normally title their first major built work. Indeed, to mention “rooms” is rare in architecture, let alone to quantify them. It is real estate agents and developers who speak of “three-bedroom houses” or “48-room hotels” but not architects, for whom it is “space” that matters, preferably as an abstract quality rather than a number of square meters. Yet the room is the very module of dwelling; architecture’s ur-space. What was Laugier’s famous frontispiece depicting if not a one-room primitive hut? The room is conspicuously absent in architectural treatises. It is not even considered an “element of architecture” by Rem Koolhaas in his homonymous exhibition and book, even though the corridor and the elevator are, and despite the exhibition taking place in the very rooms of the Venice Biennale’s Central Pavilion.

Maio Architects have no qualms when it comes to rooms. In fact, rooms are central to the way they approach an architectural project. Their office is housed in a narrow, deep ground floor commercial retail unit in Barcelona’s urban village of Gràcia that consists of three rooms aligned in a row: an entry hall, an outdoor garden-room they created by simply removing the roof and floor from a landlocked room, and finally, in the rear, an elongated studio with a single 12,5 meter worktable. Made of wooden planks that were cross-laminated by hand in situ, the table forms a permanent site-specific installation within that room: “It is not going anywhere”, says Guillermo López, one of Maio’s four founding partners. The other partners are María Charneco, Alfredo Lérida, and Anna Puigjaner; all of whom are graduates of the ETSAB (Barcelona’s largest architecture school), and most of whom combine practice with teaching and research.
Before completing 110 Rooms, Maio renovated a farmhouse in Mallorca (2008-2015) conceived as a lightweight wooden “furniture” intervention that creates four equally sized rooms within the aged exterior walls. Their previous built work consisted of exhibition designs for museums; projects in which rooms also figured prominently. As designers of the MACBA (Museum of Contemporary Art of Barcelona) exhibition “Species of Spaces” (2015), inspired by Georges Perec, Maio designed a gridded enfilade in which openings between rooms occur at the intersections of partitions, creating a field of intersecting openings that align diagonally, not axially. A 2017 Milan Furniture Fair booth for Arper was designed by Maio as a reusable, reconfigurable system for future fairs that employs a playful vocabulary of primary geometrical shaped openings into and between a grid of –you guessed it– rooms.
In addition to designing exhibitions for museums, Maio has itself also produced exhibition content for diverse architectural biennials and gallery shows. These consist mainly of experimental architectural installations and drawings in the postmodern, rather Anglosaxon tradition of academic “paper architecture”. But as López states preemptively: “we are not postmodernists”, presumably because some critics have said so. It is true that there is currently a resurgence of postmodernism in academia, perhaps as a reaction to a so-called “parametric style” that is becoming tiresome, but postmodernist or not, the built work of Maio –especially 110 Rooms– contains lessons about rooms that are valuable for architects of every stripe.

From afar, the 110 room, 22 dwelling, six story housing block infill situated within Barcelona’s 19th-century Eixample (“enlargement” in Catalan) looks like so many other buildings in Ildefons Cerda’s famous urban plan. The façade features a regularly aligned pattern of vertically elongated windows behind small balconies, and a sgraffito ornamented surface. “Many people think our project was a renovation instead of new construction,” says María Charneco. “We take this as a complement.”

Inside the entrance hall, however, it becomes clear that we’re in a neubau. Here, intersecting primary forms suddenly appear: a pyramid, an oval cylinder, an extruded polygon; all clad in differently colored marble. “It’s an homage to the Eixample’s monumental entrance halls, which often contain objects such as commercial kiosks or caretakers’ booths”, explains Charneco. Yet unlike typical entranceways, this one is open to the exterior via a tall, vertical “patio” enclosed between neighbouring party walls and the two building volumes that contain the dwelling units; one facing the street and the other the interior of the perimeter block. This tall void is a larger, much-improved version of the typical Mediterranean lightwells –“darkwells” is usually more like it– that enable cross-ventilation of flats when windows are opened in the heat of summer; a thermal chimney effect. This open shaft delivers hints of daylight from above that caress the entrance hall’s geometrical forms and colorful surfaces along with occasional splashes of rain, reminding me of the monumental lightwells of Walden 7, a utopian housing block completed by Taller de Arquitectura outside Barcelona in the mid-1970s; undoubtedly a reference for this project.

Once past the open shaft, which contains a stair and lift tower as well as access to underground parking, an open passageway leads out of the back of the building into a wonderful semi-tropical communal garden at the rear end of the plot, replete with a two-level hexagonal swimming pool. A pair of two-story dwellings with small private gardens are also situated at the back of the building’s ground floor.

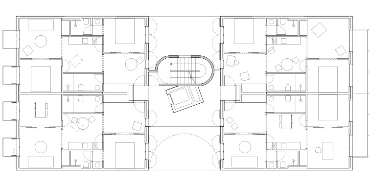
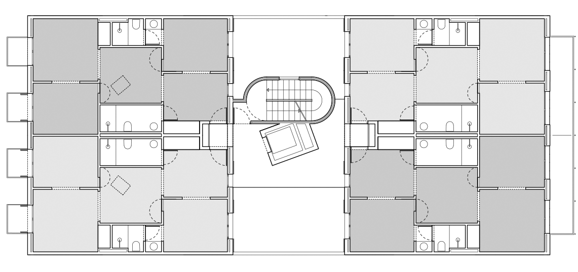
Up to this point, 110 Rooms is a lovely enough architectural project, with forms that are whimsical and provocative (it rained straight into part of the entrance hall the day I visited), but it’s not until we ascend to a typical floor that the project becomes truly innovative. We have to remember that architectural innovation is relatively rare in housing, especially considering the vast amount of it that gets built worldwide. The typical floor layout of 110 Rooms, however, is brilliant and radical, using a shifted, offset grid of standard rooms to generate versatile, corridor-less dwelling units based on the classical enfilade. The offset grid staggers the similarly sized and shaped rooms, resulting in dwelling unit plans with staggered enfilades as opposed to ones that are axially aligned.
The standard dwelling is exactly two rooms wide by three deep, but the middle two rooms are shifted laterally, generating one central room with two half-rooms on each side. Upon entering dwelling units from the outdoor access decks in the tall central patio, three staggered rooms form an enfilade that leads from the flat’s entrance foyer to a dining room with kitchenette, and onto an outward facing living room. Two bedrooms occupy opposite corners –one facing outward and the other looking into the central patio– while two bathrooms occupy the half-rooms; one en-suite and the other accessible from the flat’s foyer.

In most cases, an apartment based on such a rigid grid pattern might feel overly forced or contrived, but these dwellings work beautifully. Wide pocket doors allow bedrooms to be immediately adjusted from a level of privacy fit for a sulky teenager to an openness that would please any exhibitionist. To make the most of the natural cross-ventilation enabled by the central void, additional small wall-openings between rooms can be adjusted by means of wooden shutters. There’s also a level of longer-term flexibility within the standard layout: the plumbing stacks permit a kitchenette to be positioned in three places: in the central dining room against either bathroom wall, or in the foyer, whereby the dining room becomes significantly enlarged. Also noteworthy is how the staggered enfilade creates the illusion of a larger flat by focusing a long, diagonal gaze through successive rooms.
At present, all 22 dwellings use the same standard two-bedroom layout, yet if need be, Maio’s system of rooms permits differently sized flats to be generated. By simply moving the position of an opening (partitions were built using dry construction for this reason), a pair of neighboring two-bedroom flats can be converted into one with a single-bedroom and another containing three-bedrooms.

The architectural versatility Maio has achieved by merely tweaking the classical enfilade is impressive. However, Maio’s claim that the rooms are “programmatically indeterminate” is questionable. The mere sequence by which an enfilade is moved through conditions the usability of rooms. If a room can only be reached by passing through another room, then surely that places certain limits on the latter and differentiates possible uses.
But then this is merely quibbling over semantics. Built work is what really affects and moves us, and this built work is precedent-setting; a rare occurrence in housing, to say nothing of ordinary infill between party walls. Maio’s scandalously simple staggered enfilade shows what can occur when some design attention is focused on an element as overlooked as the lowly room.

2 Comments